405 Broadway 3
405 Broadway 3
SEE ALL PHOTOS
405 Broadway 3
405 Broadway 3
Leased

405 Broadway 3

405 Broadway 3, New York City, NY 10013

$15,000/month
Showings and Open House are by Appointment Only, Please Schedule in Advance

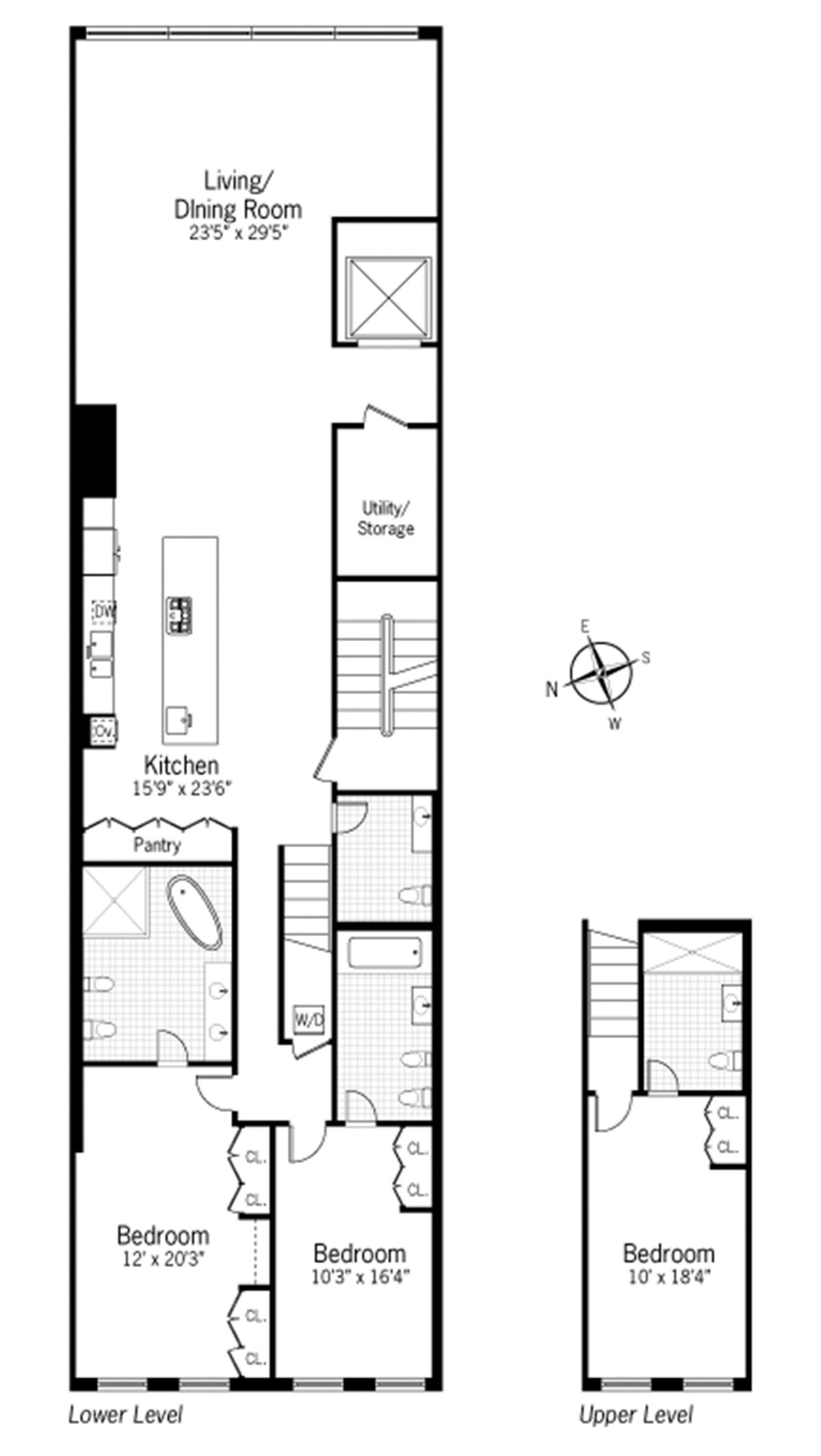
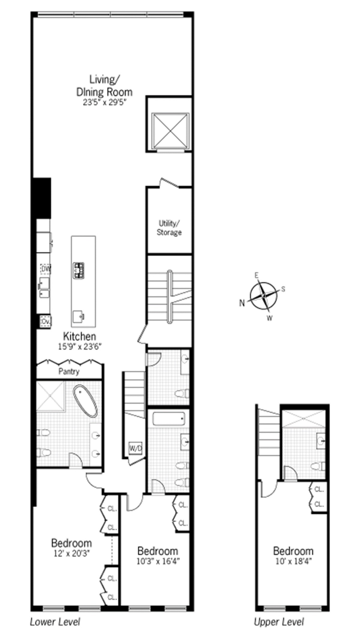
Enjoy privacy and space in your massive, full-floor, pet-friendly, duplex on the cusp of SoHo and Tribeca. Your gut renovated home features: keyed direct elevator access, 3 king size bedrooms, 3.5 bathrooms, a pristine chef's kitchen, a sprawling living/dining room, and abundant closet space. 405 Broadway is an exceptionally well-maintained, low-density, 4 unit building with a spacious fitness room and responsive management.

Enter your home through a key-locked elevator that opens directly onto your private entry foyer which also contains a large storage closet. Making your way inside, you are greeted by the picturesque chef's kitchen to your left. This Varenna by Poliform kitchen features Miele and SubZero appliances including a wine refrigerator fit for a sommelier, a dishwasher, double bowl sinks, and an extra-large vented over-stove hood.

To the right of the kitchen is your spacious alcove shaped living/dining room with high ceilings, floor-to-ceiling windows, and restored exposed brick. Complimented by distressed hardwood floors, the warm color palette of the interior makes you feel instantly at home.

The main level of the home features two of the three large bedrooms complete with en-suite bathrooms and a master bathroom with Dornbracht fixtures and a separate free-standing bathtub. The upper floor houses the third bedroom and its en-suite stone spa bathroom.

Located on the cusp of SoHo and Tribeca, 405 Broadway is surrounded by trendy restaurants, cafes, bars, and shops. Nearby subway lines include the N/Q/R/W/6/A/C/E/J/Z/1/2

3
beds

4
baths

Sq.Ft. LIVING AREA

Adam Berke

Adam Berke

Features & Amenities

Interior

  • total bedrooms3
  • Total bathrooms4
  • full bathrooms3
  • half bathroom1
  • Laundry room In Unit, See Remarks
  • APPLIANCES Dryer, Dishwasher, Stainless Steel Appliance(s), Wine Cooler, Washer
  • other interior Features Built-in Features, High Ceilings

Area & Lot

  • Status Leased
  • Living Area Sq.Ft.
  • MLS® IDRLS10954115
  • TypeCondo
  • YEAR BUILT1915
  • NeighborhoodTribeca

Exterior

  • STORIES5
  • HEAT TYPECentral
  • AIR CONDITIONINGCentral Air

Financial

  • Lease Price$15,000/mo

Tribeca

Tribeca offers luxury living, cobblestone streets, and a quiet, refined atmosphere in downtown Manhattan.

Explore

Work With Us

With our in-depth expertise and boundless knowledge, We are constantly being referred new business to help new clients navigate the complicated terrain of New York City real estate.

Follow Us on Instagram